Ingatlan azonosító
#HOME251002
BALATONFÜRED – ÚJ ÉPÍTÉSŰ IKERHÁZ
ELADÓ ÚJ ÉPÍTÉSŰ, BALATONI PANORÁMÁS IKERHÁZ BALATONFÜREDEN
Balatonfüred egyik legszebb részén, 2025-ben épült, kétszintes, 160 m²-es ikerház várja új tulajdonosát. Az ingatlan tulajdonosi szemlélettel, kiváló minőségű anyagokból épült, így garantált a tartósság és az igényes megjelenés.
Virtuális séta: https://my.matterport.com/show/?m=ut5BQVjzaXh&sm=2&sr=-1.07,.88,.95&sp=28.14,23.81,12.26
– Lenyűgöző kilátás a Tihanyi-félszigetre mind a földszinti, mind az emeleti teraszról
– Nagy, 414 m²-es telek teljes közművel
– Modern hőszivattyús fűtés és padlófűtés az egész házban
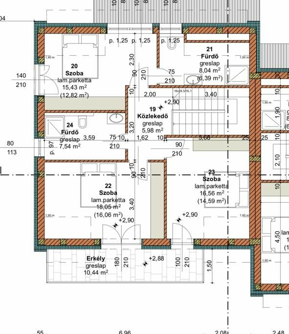
– 4 hálószoba, 3 fürdőszoba, hatalmas amerikai konyhás nappali és két balatoni panorámás terasz
Praktikus elrendezés:
– Földszint: nappali-konyha-étkező 16 m²-es terasszal, 1 hálószoba, fürdőszoba wc-vel, tároló
– Emelet: 3 hálószoba (ebből egy saját fürdőszobával), közös fürdőszoba, 10 m²-es erkély két hálóból megközelítve
Extrák: klímaberendezés, elektromos redőnyök minden szobában, riasztó és kamerarendszer előkészítés, parkoló 2 autónak
Ez az ingatlan teljesen új, nem igényel felújítást vagy festést – ide tényleg csak be kell költözni, és azonnal élvezheti a balatoni életérzést!
Telek mérete
414 m²
Ingatlan mérete
160 m²
Szobák száma
5 szoba
Építés éve
2025
Építés módja
tégla
Állapot
új
Panoráma
balatoni panoráma
Terasz
dupla
Komfort
dupla komfortos
Közművek
összközműves
Szigetelt
igen
Fűtés típusa
hőszivattyús (padlófűtés)
Légkondícionáló
hűtő-fűtő klíma
Parkolás
2 autós beálló
Érdekli az ingatlan, kérdése van?
Keressen bizalommal



















































